+7 (495) 646-62-89 0 Избранное
Строительство домов из СИП панелей по канадской технологии Москва, Большая Тульская 2
Балашиха, Разинское шоссе 5
Калькулятор Заказать звонок 0 Избранное
+7 (495) 646-62-89 doma.sip@mail.ru Режим работы: Пн-Сб с 10:00 до 19:00

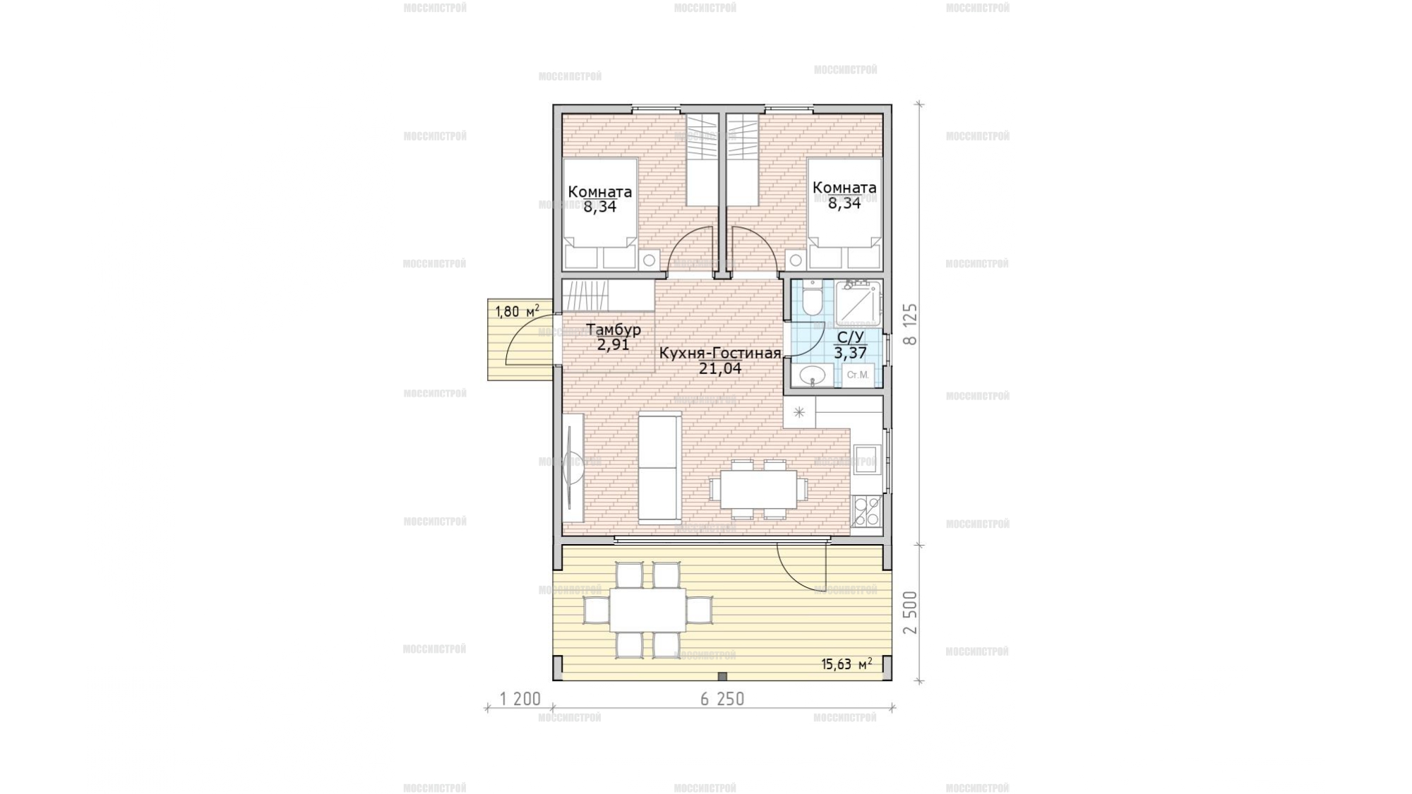
Проект МСС38 одноэтажный, 66,4м м²

1 414 000 ₽ Домокомплект
Строим без предоплаты
  • Старая цена: 1420000
  • Размеры, м: 6,25х10,625
  • Этажность: Одноэтажные
  • Срок строительства, дней: 10
  • Общая площадь, м²: 66,4м

Выбрать свою комплектацию

Комплектация Старт
Стоимость 1 414 000 ₽
Оставить заявку

Комплектация Старт - включает в себя домокомплект для самостоятельной сборки

Домокомплект

  • *АР+КР проектная документация.
  • *Сип панель Калевала/Муром/Талион(OSB-3 влагостойкая, толщина 12 мм).
  • *Пенополистирол плотностью 16кг/м3, самозатухающий, производитель МосСтрой - 31 мм
  • *Нулевое перекрытие - СИП панели 224 мм.
  • *Тепловой контур дома замкнутый - СИП панели 174 мм.
  • *Внутренние перегородки каркас – 50х150мм.
  • *Весь состыковочный пиломатериал обработан Неомидом – строганный, калиброванный, камерной сушки 12-14%. Для состыковки СИП панелей, используем только брус.
  • *Весь необходимый крепеж для сборки дома (глухари, саморезы оцинкованные, скобы, гвозди, монтажная пена, очиститель, перфорированный крепеж, уголки и т.д.)
  • *Силовой каркас под кровлю + пароизоляционная мембрана + обрешетка.


ИТОГО ПО КОМПЛЕКТАЦИИ СТАРТ: 1 414 000 ₽ Оставить заявку

Дополнительная услуга (на усмотрение заказчика)

По желанию заказчика, можем предоставить шеф-монтаж или технадзор (условия обсуждаются отдельно)

Заменить внутренние каркасные перегородки на сип панельные перегородки.

Комплектация Стандарт
Стоимость По запросу
Оставить заявку

Комплектация Стандарт - включает в себя дом под чистовую отделку (фундамент, домокомплект, кровлю, окна, входная дверь + монтаж)

Выезд специалиста на объект (пятно застройки), пробный анализ земельного участка, замеры перепада по высотам, оценка заезд спецтехники, техническое размещение стройматериала.

Фундамент на выбор.
Железобетонные сваи - 150х150 мм , L=3000мм, марка бетона М-450, армировка-10мм. Работа по монтажу ЖБ свай, гидроизоляция, оголовок 250х250 мм, доставка материалов и техники. Винтовые сваи -обработанные антикоррозийным составом, диаметр 108 мм, толщина стенки 4 мм, L=3000 мм, диаметр лопасти 300 мм, толщина лопасти 5 мм. Монтаж спец.техникой.
Обвязка фундамента брусом 200х200 с обработкой битумным праймером.

Домокомплект

  • *АР+КР проектная документация.
  • *Сип панель Калевала/Муром/Талион(OSB-3 влагостойкая, толщина 12 мм).
  • *Пенополистирол плотностью 16кг/м3, самозатухающий, производитель МосСтрой - 31 мм
  • *Нулевое перекрытие - СИП панели 224 мм.
  • *Тепловой контур дома замкнутый - СИП панели 174 мм.
  • *Внутренние перегородки каркас – 50х150мм.
  • *Весь состыковочный пиломатериал обработан Неомидом – строганный, калиброванный, камерной сушки 12-14%. Для состыковки СИП панелей, используем только брус.
  • *Весь необходимый крепеж для сборки дома (глухари, саморезы оцинкованные, скобы, гвозди, монтажная пена, очиститель, перфорированный крепеж, уголки и т.д.)
  • *Силовой каркас под кровлю + пароизоляционная мембрана + обрешетка
  • *Крылечки, терраса, балконы в стоимость входят. Монтаж осуществляется нашими штатными бригадами, строим с 2012 года!

Кровля металочерепица Квадро, толщина металла 0,5мм, покрытие полиэстер, цвет любой на выбор + комплектующие (конек, ветровые, карнизные планки, саморезы с резиновой пресшайбой. Также можем произвести замену - (мягкую кровлю, СТ-15 , Клик фальц, металопрофиль и тд.) + Монтаж

Окна ПВХ + входная дверь металлическая : Профильная система Рехау, Мелке, КБЕ, 3 стекла, фурнитура РОТО, отливы, подоконники, москитные сетки на все поворотно-откидные створки. + Монтаж


ИТОГО ПО КОМПЛЕКТАЦИИ СТАНДАРТ: По запросу Оставить заявку
Комплектация Комфорт
Стоимость По запросу
Оставить заявку

Комплектация Комфорт - включает в себя дом под чистовую отделку (фундамент, домокомплект, кровлю, окна, входная дверь, наружная отделка + монтаж)

Выезд специалиста на объект (пятно застройки), пробный анализ земельного участка, замеры перепада по высотам, оценка заезд спецтехники, техническое размещение стройматериала.

Фундамент на выбор. Железобетонные сваи - 150х150 мм , L=3000мм, марка бетона М-450, армировка-10мм. Работа по монтажу ЖБ свай, гидроизоляция, оголовок 250х250 мм, доставка материалов и техники. Винтовые сваи -обработанные антикоррозийным составом, диаметр 108 мм, толщина стенки 4 мм, L=3000 мм, диаметр лопасти 300 мм, толщина лопасти 5 мм. Монтаж спец.техникой. Обвязка фундамента брусом 200х200 с обработкой битумным праймером.

Домокомплект

  • *АР+КР проектная документация.
  • *Сип панель Калевала/Муром/Талион(OSB-3 влагостойкая, толщина 12 мм).
  • *Пенополистирол плотностью 16кг/м3, самозатухающий, производитель МосСтрой - 31 мм
  • *Нулевое перекрытие - СИП панели 224 мм.
  • *Тепловой контур дома замкнутый - СИП панели 174 мм.
  • *Внутренние перегородки каркас – 50х150мм.
  • *Весь состыковочный пиломатериал обработан Неомидом – строганный, калиброванный, камерной сушки 12-14%. Для состыковки СИП панелей, используем только брус.
  • *Весь необходимый крепеж для сборки дома (глухари, саморезы оцинкованные, скобы, гвозди, монтажная пена, очиститель, перфорированный крепеж, уголки и т.д.)
  • *Силовой каркас под кровлю + пароизоляционная мембрана + обрешетка
  • *Крылечки, терраса, балконы в стоимость входят. Монтаж осуществляется нашими штатными бригадами, строим с 2012 года!

Кровля металочерепица Квадро, толщина металла 0,5мм, покрытие полиэстер, цвет любой на выбор + комплектующие (конек, ветровые, карнизные планки, саморезы с резиновой пресшайбой. Также можем произвести замену - (мягкую кровлю, СТ-15 , Клик фальц, металопрофиль и тд.) + Монтаж

Окна ПВХ + входная дверь металлическая : Профильная система Рехау, Мелке, КБЕ, 3 стекла, фурнитура РОТО, отливы, подоконники, москитные сетки на все поворотно-откидные створки. + Монтаж

Отделка дома c вентилируемым фасадом (под ключ) * Обшивка дома (гидро-ветрозащитная паропроницаемая диффузионная мембрана АМ/АS), обрешетка строганная камерная сушка 25х100 мм, 50х50мм,50х100мм *Цоколь + фасад известных брендов Grand Line(Гранд лайн), Docke (Деке), Дековер, Коньон фасадная плитка, Имитация бруса, Технониколь Хауберг. *Софиты перфорированные (пластик, метал) *Водосточная система (пластик, метал) Доставка, сборка-разборка строительных лесов, монтаж фасадной отделки под ключ.


ИТОГО ПО КОМПЛЕКТАЦИИ КОМФОРТ: По запросу Оставить заявку
Комплектация Люкс
Стоимость По запросу
Оставить заявку

Комплектация Люкс - включает в себя дом под ключ (фундамент, домокомплект, кровля, окна, входная дверь, наружная отделка, септик, скважина, внутренняя отделка + монтаж)

Выезд специалиста на объект (пятно застройки), пробный анализ земельного участка, замеры перепада по высотам, оценка заезд спецтехники, техническое размещение стройматериала.

Фундамент на выбор. Железобетонные сваи - 150х150 мм , L=3000мм, марка бетона М-450, армировка-10мм. Работа по монтажу ЖБ свай, гидроизоляция, оголовок 250х250 мм, доставка материалов и техники. Винтовые сваи -обработанные антикоррозийным составом, диаметр 108 мм, толщина стенки 4 мм, L=3000 мм, диаметр лопасти 300 мм, толщина лопасти 5 мм. Монтаж спец.техникой. Обвязка фундамента брусом 200х200 с обработкой битумным праймером.

Домокомплект

  • *АР+КР проектная документация.
  • *Сип панель Калевала/Муром/Талион(OSB-3 влагостойкая, толщина 12 мм).
  • *Пенополистирол плотностью 16кг/м3, самозатухающий, производитель МосСтрой - 31 мм
  • *Нулевое перекрытие - СИП панели 224 мм.
  • *Тепловой контур дома замкнутый - СИП панели 174 мм.
  • *Внутренние перегородки каркас – 50х150мм.
  • *Весь состыковочный пиломатериал обработан Неомидом – строганный, калиброванный, камерной сушки 12-14%. Для состыковки СИП панелей, используем только брус.
  • *Весь необходимый крепеж для сборки дома (глухари, саморезы оцинкованные, скобы, гвозди, монтажная пена, очиститель, перфорированный крепеж, уголки и т.д.)
  • *Силовой каркас под кровлю + пароизоляционная мембрана + обрешетка
  • *Крылечки, терраса, балконы в стоимость входят. Монтаж осуществляется нашими штатными бригадами, строим с 2012 года!

Кровля металочерепица Квадро, толщина металла 0,5мм, покрытие полиэстер, цвет любой на выбор + комплектующие (конек, ветровые, карнизные планки, саморезы с резиновой пресшайбой. Также можем произвести замену - (мягкую кровлю, СТ-15 , Клик фальц, металопрофиль и тд.) + Монтаж

Окна ПВХ + входная дверь металлическая : Профильная система Рехау, Мелке, КБЕ, 3 стекла, фурнитура РОТО, отливы, подоконники, москитные сетки на все поворотно-откидные створки. + Монтаж

Отделка дома c вентилируемым фасадом (под ключ) * Обшивка дома (гидро-ветрозащитная паропроницаемая диффузионная мембрана АМ/АS), обрешетка строганная камерная сушка 25х100 мм, 50х50мм,50х100мм *Цоколь + фасад известных брендов Grand Line(Гранд лайн), Docke (Деке), Дековер, Коньон фасадная плитка, Имитация бруса, Технониколь Хауберг. *Софиты перфорированные (пластик, метал) *Водосточная система (пластик, метал) Доставка, сборка-разборка строительных лесов, монтаж фасадной отделки под ключ.

Септик Топас, Аквалос, Малахит, Гринлос, Тополь. Мы продаем и устанавливаем только станции сделанные из первичного полипропилена (у них самые крепкие и надежные корпусы по своему конструктиву) и компрессорного типа, самая высокая степень очистки воды.
* Доставка, монтаж и ввод коммуникации в дом.

Скважина. *Конструкция скважины: стальная труба 133 ПНД 117, толщина стенки металла — 4,5 мм. *Материал трубы — полиэтилен низкого давления (ПНД), толщина стенки — 7,2 мм. ПНД — первый сорт пищевого пластика. *Скважины бурятся на известняковый горизонт (артезианская) в Московской области. Глубина залегания водоносного горизонта — от 15 до 230 метров. *Для бурения используются крупногабаритные установки 2А2, а также малогабаритные установки на гусеничном ходу для работы в стеснённых условиях.
*Доставка, монтаж и ввод коммуникации в дом.

Отделка внутренняя
Внутренняя отделка дома включает в себя следующие работы.

  • * Подготовка поверхности: грунтовка. гидроизоляция .
  • *Монтаж системы: электрики, отопления, водоснабжения, канализации, радиаторы отопления,
  • сантехническое, водяного и электрического оборудование.
  • * Укладка напольных покрытий : ламинат, линолеум, ковролин, паркет, плитка и т.д)
  • * Отделка стен: имитация бруса, гипсокартон, обои, покраска, декоративные панели,
  • облицовка плиткой и т.д.
  • * Отделка потолков : имитация бруса, натяжные, гипсокартон.
  • * Установка : межкомнатных дверей и их облицовка.
  • * Разводка электрики, сборка электрического щитка.
  • * Установка освещения : люстры, бра, точечные светильники, светодиодные ленты.
  • * Монтаж декоративных элементов : плинтусы, наличники, карнизы, молдинги.
  • * Финальная уборка и вывоз строительного мусора.


! Это лишь общий перечень работ, которые могут входить во внутреннюю отделку дома. Конкретный список зависит от пожеланий заказчика и типа строения.
Установка мебели и техники:  кухонная мебель, мебель для гостиной, мебель для спальни, бытовая техника - Обсуждается отдельно.


ИТОГО ПО КОМПЛЕКТАЦИИ ЛЮКС: По запросу Оставить заявку
mobile

Похожие проекты

Лесной

2 935 000 ₽ 3 155 000 ₽
13,125x15 м 138.56 м2
Открыть проект Ипотека

Хвойный

2 847 000 ₽ 3 129 000 ₽
10х13,75 м 137.5 м2
Открыть проект Ипотека

МСС 2260

1 212 000 ₽ 1 335 000 ₽
6x10 м 60 м2
Открыть проект Ипотека

Барнхаус (МСС2284)

1 746 000 ₽ 1 917 000 ₽
7x12 м 84 м2
Открыть проект Ипотека

МСС 2231

796 000 ₽ 796 000 ₽
5x6,2 м 31 м2
Открыть проект Ипотека

Вильнюс

2 363 000 ₽ 2 597 000 ₽
10x11,875 м 109.3 м2
Открыть проект Ипотека

Старт

1 469 000 ₽ 1 616 000 ₽
7,5x9,2 м 69 м2
Открыть проект Ипотека

Сара

2 110 000 ₽ 2 321 000 ₽
8,125x12,5 м 101.56 м2
Открыть проект Ипотека

Баня 30

732 000 ₽ 787 000 ₽
4,375x7,5 м 29.7 м2
Открыть проект Ипотека

МСС42

3 767 000 ₽ 3 980 000 ₽
14,375 х 15,625 м 224,6 м2
Открыть проект Ипотека

Престиж

3 208 000 ₽ 3 452 000 ₽
13,75х14,375 м 192.6 м2
Открыть проект Ипотека

МСС46

3 987 000 ₽ 4 344 000 ₽
12,5х20 м 187,5 м2
Открыть проект Ипотека

МСС 22131

2 545 000 ₽ 2 800 000 ₽
9x14,5 м 130.5 м2
Открыть проект Ипотека

МСС 2296/1

2 142 000 ₽ 2 333 000 ₽
8x12 м 96 м2
Открыть проект Ипотека

Мишкин дом

2 499 000 ₽ 2 687 000 ₽
12x12 м 144 м2
Открыть проект Ипотека

МСС 2248

1 160 000 ₽ 1 247 000 ₽
6x8 м 48 м2
Открыть проект Ипотека

Купол

2 136 000 ₽ 2 351 000 ₽
10x10,625 м 98.43 м2
Открыть проект Ипотека

МСС29

3 553 000 ₽ 3 766 000 ₽
13,125 х 16,25 м 213,2 м2
Открыть проект Ипотека

МСС 22160

3 331 000 ₽ 3 663 000 ₽
10x16 м 160 м2
Открыть проект Ипотека

МСС47

1 536 000 ₽ 1 657 000 ₽
7,5х10 м 75 м2
Открыть проект Ипотека

МСС 2274

1 604 000 ₽ 1 706 000 ₽
6,25x11,8 м 73 м2
Открыть проект Ипотека

Гудвин

1 256 000 ₽ 1 383 000 ₽
7,5x7,5 м 56.3 м2
Открыть проект Ипотека

Костино

2 751 000 ₽
8,75 х 13,125 м 112,6 м2
Открыть проект Ипотека

МСС33

2 513 000 ₽ 2 664 000 ₽
8,75 х 15 м 131,25 м2
Открыть проект Ипотека

Аристократ

3 066 000 ₽ 3 296 000 ₽
10х18,125 м 165.6 м2
Открыть проект Ипотека

МСС36

2 417 000 ₽ 2 603 000 ₽
11,25 х 11,875 м 128 м2
Открыть проект Ипотека

Натали

2 881 000 ₽ 3 097 000 ₽
11,875x14 м 145.6 м2
Открыть проект Ипотека

МСС 2272

1 643 000 ₽ 1 776 000 ₽
8x9 м 72 м2
Открыть проект Ипотека

МСС 2296

2 142 000 ₽ 2 565 000 ₽
8x12 м 96 м2
Открыть проект Ипотека

МСС35

3 230 000 ₽ 3 431 000 ₽
10,625 х 15 м 169 м2
Открыть проект Ипотека

Мелания-2

2 819 000 ₽ 2 988 000 ₽
10 х 15 м 138,3 м2
Открыть проект Ипотека

Торонто

1 899 000 ₽ 2 089 000 ₽
7,5x12,5 м 93.75 м2
Открыть проект Ипотека

Лужок

1 697 000 ₽ 1 867 000 ₽
8,5x10 м 85 м2
Открыть проект Ипотека

Атлас

1 394 000 ₽ 1 531 000 ₽
6,875x9,375 м 64.5 м2
Открыть проект Ипотека

МСС28

3 165 000 ₽ 3 355 000 ₽
10 х 18 м 180 м2
Открыть проект Ипотека

Шишкин лес

2 402 000 ₽ 2 642 000 ₽
11,25x11,875 м 128 м2
Открыть проект Ипотека

МСС43

2 817 000 ₽ 2 986 000 ₽
10 х 14,375 м 138 м2
Открыть проект Ипотека

МСС2283

1 893 000 ₽ 2 045 000 ₽
8,25х10 м 83 м2
Открыть проект Ипотека

Хьюстон

3 008 000 ₽ 3 310 000 ₽
10x16,875 м 153.9 м2
Открыть проект Ипотека

Шарапово

837 000 ₽ 900 000 ₽
6x6,25 м 37.5 м2
Открыть проект Ипотека

МСС39

2 720 000 ₽ 2 910 000 ₽
10х12,5 м 120.5 м2
Открыть проект Ипотека

Лаура

1 498 000 ₽ 1 648 000 ₽
10x10,625 м 65 м2
Открыть проект Ипотека

Верона

2 140 000 ₽ 2 316 000 ₽
10x10,625 м 106.25 м2
Открыть проект Ипотека

Финикс

2 204 000 ₽ 2 431 000 ₽
10x11,25 м 98.8 м2
Открыть проект Ипотека

МСС31

3 116 000 ₽ 3 303 000 ₽
10,625 х 17,5 м 157,8 м2
Открыть проект Ипотека

Остин

2 744 000 ₽ 2 872 000 ₽
10,625x11,875 м 126.1 м2
Открыть проект Ипотека

Дублин

2 226 000 ₽ 2 393 000 ₽
8,75x12,5 м 109.4 м2
Открыть проект Ипотека

Лайт

1 703 000 ₽ 1 867 000 ₽
8,125x10 м 81.25 м2
Открыть проект Ипотека

Мелания

2 811 000 ₽ 3 095 000 ₽
10x15 м 138.3 м2
Открыть проект Ипотека

МСС 2239

1 055 000 ₽ 1 159 000 ₽
5x6,2 м 39 м2
Открыть проект Ипотека
Если у вас остались вопросы, то оставьте свои данные и мы свяжемся с вами в ближайшее время
Ваша заявка принята
Мы свяжемся с вами в ближайшее время